Share:
Description
- End-of-terrace property with two self-contained flats
- Ground floor flat tenanted, producing £1,230 PCM
- First floor flat currently vacant – opportunity to set own rent or reconfigure
- Separate council tax bands for each flat
- Flexible layout – previously had first-floor kitchen
- Good-sized private rear garden with side access
- Rear outbuilding and potential to extend STPP
- Immediate rental income from ground floor flat
- Option to return to single-family home or maintain as investment
- Offered for sale via online auction
Being Sold via Secure Sale online bidding. Terms & Conditions apply. Starting Bid £440,000
Flexible Investment with Immediate Income and Scope to Add Value
Offered for sale by online auction, this end-of-terrace property is currently arranged as two self-contained flats and provides a straightforward investment opportunity with income from day one.
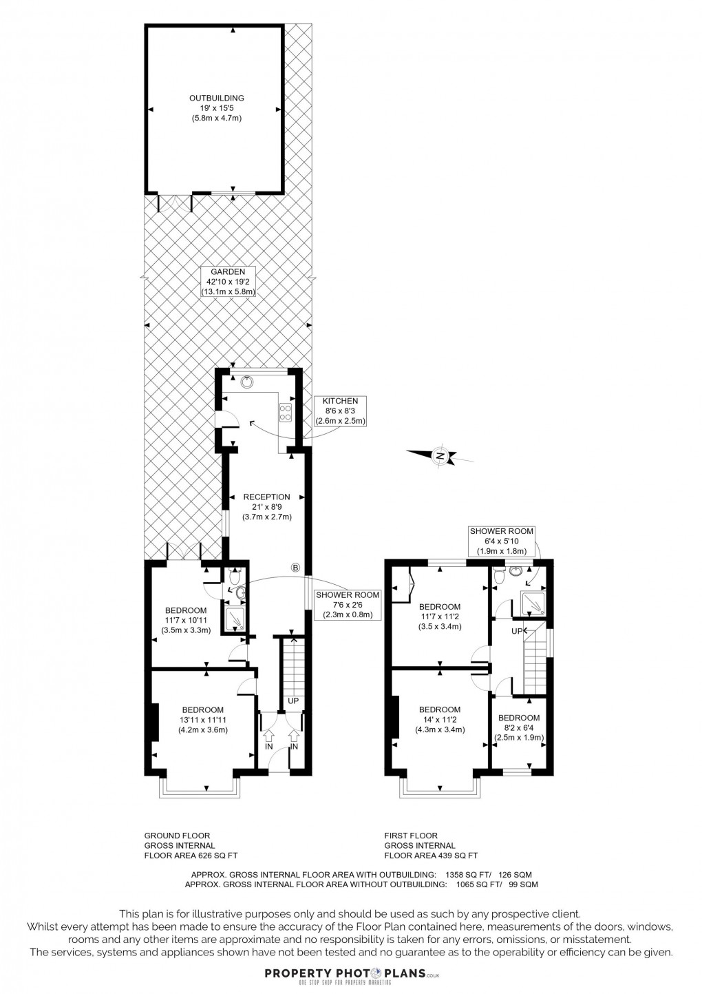
The ground floor flat is tenanted and will be sold with tenants in situ, currently producing £1,230 per calendar month. The first floor flat is vacant, giving a buyer the opportunity to set their own rent, update the layout or explore alternative uses. The property benefits from separate council tax bands and has previously been configured with a kitchen on the first floor in what is now a bedroom, meaning the layout could be adjusted again if required.
To the rear is a good-sized private garden with side access and a substantial outbuilding, offering further potential subject to the usual consents.
The property works well as an investment producing immediate income, but could equally be returned to a single family home, making it an appealing option for buyers seeking flexibility and future upside.
Auctioneers Additional Comments
Pattinson Auction are working in Partnership with the marketing agent on this online auction sale and are referred to below as 'The Auctioneer'.
This auction lot is being sold either under conditional (Modern) or unconditional (Traditional) auction terms and overseen by the auctioneer in partnership with the marketing agent.
The property is available to be viewed strictly by appointment only via the Marketing Agent or The Auctioneer. Bids can be made via the Marketing Agent or via The Auctioneer’s website.
Please be aware that any enquiry, bid or viewing of the subject property will require your details being shared between both any marketing agent and The Auctioneer in order that all matters can be dealt with effectively.
The property is being sold via a transparent online auction.
In order to submit a bid upon any property being marketed by The Auctioneer, all bidders/buyers will be required to adhere to a verification of identity process in accordance with Anti Money Laundering procedures. Bids can be submitted at any time and from anywhere.
Our verification process is in place to ensure that AML procedures are carried out in accordance with the law.
The advertised price is commonly referred to as a ‘Starting Bid’ or ‘Guide Price’ and is accompanied by a ‘Reserve Price’. The ‘Reserve Price’ is confidential to the seller and the auctioneer and will typically be within a range above or below 10% of the ‘Guide Price’ / ‘Starting Bid’.
These prices are subject to change.
An auction can be closed at any time with the auctioneer permitting for the property (the lot) to be sold prior to the end of the auction.
A Legal Pack associated with this particular property is available to view upon request and contains details relevant to the legal documentation enabling all interested parties to make an informed decision prior to bidding. The Legal Pack will also outline the buyers’ obligations and sellers’ commitments. It is strongly advised that you seek the counsel of a solicitor prior to proceeding with any property and/or Land Title purchase.
In order to secure the property and ensure commitment from the seller, upon exchange of contracts the successful bidder will be expected to pay a non-refundable deposit equivalent to 5% of the purchase price of the property. The deposit will be a contribution to the purchase price. A non-refundable reservation fee of up to 6% inc VAT (subject to a minimum of £6,000 inc VAT) is also required to be paid upon agreement of sale. The Reservation Fee is in addition to the agreed purchase price and consideration should be made by the purchaser in relation to any Stamp Duty Land Tax liability associated with overall purchase costs.
Both the Marketing Agent and The Auctioneer may believe necessary or beneficial to the customer to pass their details to third party service suppliers, from which a referral fee may be obtained. There is no requirement or indeed obligation to use these recommended suppliers or services.
Material Information
- Local Authority: Ealing Council
- Ground Rent Period: Month
- Service Charge Period: Month
- Heating Supply: Gas Central
- Is Loft Boarded: No
- Outside Space: Type - Rear Garden
- Parking: Parking Space Type - Driveway
- Parking: Capacity - 2
- All Others: Ask Agent
Floorplan
To discuss this property call our Greenford branch:
Market your property
with SAB Estates
Book a market appraisal for your property today. Our virtual options are still available if you prefer.
