Share:
Description
- Chain Free
- Ground Floor Flat
- Leasehold: 92 Years Remaining
- Assigned Parking Space
- Private Rear Garden
- Great Transport Links
- Built-in Storage
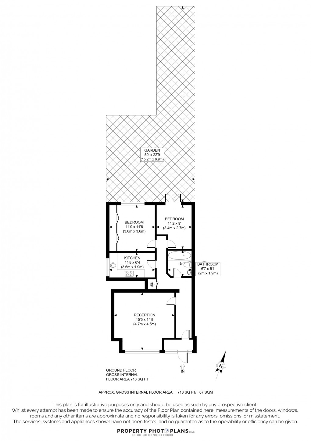
Two-Bedroom Ground Floor Flat with Private Garden & Allocated Parking
This two-bedroom flat is located on the ground floor and offers a practical layout in a convenient location close to local amenities and transport links.
The property includes a reception room, separate kitchen, two bedrooms, and a bathroom. The space is well arranged and suitable for a range of buyers.
One of the main features of the property is the private rear garden, providing outdoor space to relax or use as you wish. The flat also benefits from an allocated parking space, adding convenience for residents.
Shops, cafes, and everyday amenities are nearby, and there are good transport connections within easy reach, making it well placed for commuting and travel.
The property could suit first-time buyers, investors, or those looking to downsize.
Material Information
- Local Authority: London Borough of Ealing
- Council Tax Band: C
- Ground Rent Pence: £200.00
- Ground Rent Period: Year
- Service Charge Pence: £197.00
- Service Charge Period: Year
- Heating Supply: Gas Central
- Is Loft Boarded: No
- Outside Space: Type - Rear Garden
- Outside Space: Orientation - NW
- Parking: Parking Space Type - Allocated Parking
- Parking: Capacity - 1
- All Others: Ask Agent
Floorplan
EPC
To discuss this property call our Greenford branch:
Market your property
with SAB Estates
Book a market appraisal for your property today. Our virtual options are still available if you prefer.
