Share:
Description
- Chain Free
- Driveway for Two Vehicles
- Private Rear Garden
- Side Entrance
- Great Transport Links
- Potential for Further Extension STPP
- Rear Garage
Two-Bedroom Bungalow with Large Garden, Garage & Driveway – Chain Free
A chain-free two-bedroom bungalow with two double bedrooms, generous garden, and potential to personalise.
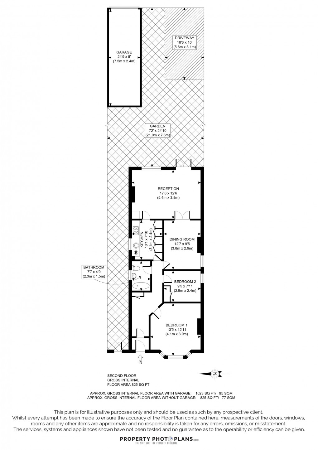
The property comprises a main bedroom with a bay window and a second double bedroom. A centrally positioned bathroom is easily accessible from both rooms.
There is a separate dining room leading to the kitchen, providing a practical space for everyday living. To the rear, a bright reception room overlooks the garden with direct access outside. Gated alleyway access provides convenient entry to the rear of the property.
The garden is long, offering great potential to extend (STPP) as well as space for landscaping. A detached garage and private driveway with space for two vehicles complete the outdoor space.
Situated close to local shops, schools, and transport links, this bungalow offers comfortable living now with the option to adapt in the future.
Material Information
- Local Authority: London Borough of Ealing
- Council Tax Band: D
- Ground Rent Period: Month
- Service Charge Period: Month
- Heating Supply: Gas Central
- Is Loft Boarded: No
- Outside Space: Type - Garden
- Outside Space: Orientation - E
- Parking: Parking Space Type - Driveway
- Parking: Capacity - 2
- All Others: Ask Agent
Floorplan
To discuss this property call our Greenford branch:
Market your property
with SAB Estates
Book a market appraisal for your property today. Our virtual options are still available if you prefer.
