Share:
Description
- Fully Refurbished Extended House
- Freehold
- Chain Free
- Off-Street Parking for 2 cars
- Large Garden Annexe (526 sq ft) recently refurbished
- Close to Perivale Station (10-minute walk)
- Energy Efficient Greenstar Life Worcester Bosch boiler (warranty until June 2033)
- Proximity to Amenities and local parks, including Horsenden Hill
- Wood Flooring and low-voltage lighting throughout
- Low Maintenance Garden with composite decking
SAB Estates proudly presents this beautifully refurbished end-of-terrace house located in Perivale, UB6. This versatile property is currently arranged as two stylish flats, making it an ideal investment opportunity, but it also has the potential to be transformed back into a spacious family home.
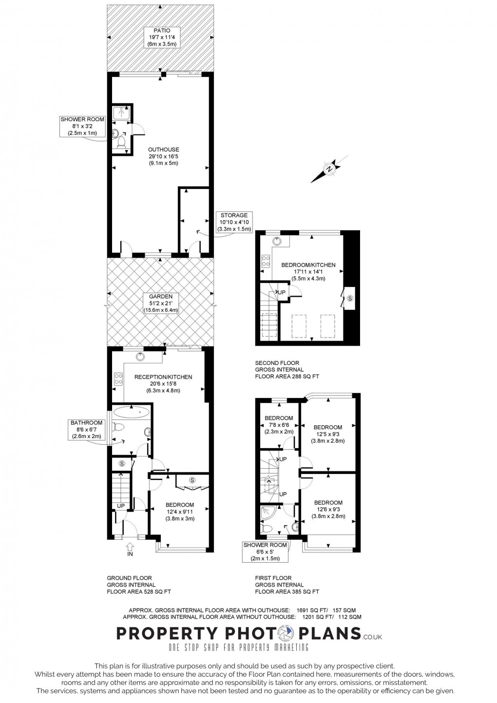
The ground floor boasts a generous one-bedroom flat complete with a modern bathroom, a stylish kitchen diner featuring granite countertops, and patio doors that lead to a low-maintenance garden adorned with composite decking. On the upper floors, you’ll find three additional bedrooms and a convenient shower room, providing ample living space.
One of the standout features of this property is the large, recently refurbished garden annexe, spanning 526 sq ft. This high-spec space includes a shower room, underfloor heating, and patio doors that open to an outdoor area overlooking serene allotments, perfect for relaxation or entertaining.
Situated on a quiet residential road, 24 Jubilee Road is just a 10-minute walk from Perivale Station, offering excellent access to the Central Line. With a 24-hour bus service to Ealing Broadway, which connects to the new Elizabeth Line and mainline rail services, commuting is a breeze. The property also benefits from off-street parking for two cars and easy access to the A40/M40, ensuring connectivity and convenience.
Material Information
- Local Authority: Ealing Council
- Ground Rent Period: Month
- Service Charge Period: Month
- Is Loft Boarded: No
- Outside Space: Type - Garden
- Outside Space: Orientation - SW
- Parking: Parking Space Type - Driveway
- Parking: Capacity - 2
- All Others: Ask Agent
Floorplan

EPC
To discuss this property call our Greenford branch:
Market your property
with SAB Estates
Book a market appraisal for your property today. Our virtual options are still available if you prefer.